Four sided shape with 2 long and 2 short sides.
What is a rectangle?
PEMDAS stands for:
What is:
Parenthesis, exponents, multiplication, division, addition, then subtraction?
The result of a multiplication problem
What is the product?
A quotient.
What is the result to a division problem called?
Three boxes filled with fiction books and two boxes filled with reference books were just delivered. If each box is filled with 120 books, how many fiction books are there?
What is 360 fiction books?

What are parallel lines?
122 − 22 − 3 + 7 − 1 =
What is 113?
1, 2, 3, 4, 6, 12
What are the factors of 12?
812/4=
What is 203?
In a car factory, there are 8 assembly lines. Each assembly lines manufactures cars at the same speed.
1. There are 2 supervisors and 12 workers working on each assembly line. How many workers are there in total?
2. If the factory produces 48 cars in a day, how many cars does each assembly line make each day?
3. If all the assembly lines operate 12 hours a day, how long does it take for one assembly line to produce one car?
What are:
1. 96 workers total?
2. Each assembly line can make 6 cars per day?
3. It takes one assembly line 2 hours to produce one car?

What are intersecting lines?
25 + (35 + 31) * (27 − 19) =
What is 553?
8, 16, 24, 32, 40, 48, 56, 64, 72, 80
What are the first ten multiples of 8?
981/8=
What is 122 r. 5?
Eric’s kite spool had 100 yards of string. At first, he let out 50 feet of string. Then, the kite rose for another 16 yards. How much string was left on the spool?
What is:
50 feet = 16 2/3 yard
100 − 2/3 − 16 = 67 1/3
67 1/3 yards of string were left on the spool.
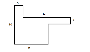
Solve
What is 41 units?
(16 + 12) ÷ 7 + (53 − 5) ÷ 8 =
What is 10?
7*645=
What is 4,515?
37,125 ÷ ____= 45
What is 825?
Each parking spot is 8 feet wide. A parking lot has 24 parking spots side by side. What is the width (measured in yards) of the parking lot?
8 x 24 = 192
192 feet = 64 yards
The width of the parking lot is 64 yards.
Solve for area & perimeter.
What is:
P= 40 in.
A= 63 sq in.
(102 − 32) × 6 − 3 × 2 =
What is 540?
456 * 789=
What is 359,784?

What is 1268 r. 5?
A music store is having its “Black Friday” sale. The store will give $5 off for the second item a customer purchases. Emma wants to buy a pair of headphones for $25 and a CD for $18.50. How much does she need to pay in total?
What is:
$25.00 + $18.50 – $5.00 = $38.50 Emma needs to pay $38.50.