What is the distance formula?
d=√(x₂-x₁)²+(y₂-y₁)²
What is the midpoint formula?
X1 + X2 , Y1 + Y2
2 2
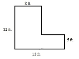
What is the perimeter?
18 ft

47.1 cm or 15 pi
122 cm2
What is the distance between (8,11) and (8,4)?
7
Given the points A and B where A is at coordinates
( 2,-5 ) and B is at coordinates ( -3,-7 ) on the line segment AB, find the midpoint of AB.
(-0.5,-6)
Find the area of the triangle.
70 m2
21.98 in
131 ft2
Given the points A and B where A is at coordinates ( 2, -5 ) and B is at coordinates ( -3, -7 ) on the line segment AB, find the length of AB.
√29 or 5.39
Find the midpoint of the line segment AB where point A is at ( 0, 2 ) and point B is at ( -1, - 4 ).
(-0.5,-1)
Find the area:

120 in2
Find the Perimeter
30.84 ft
248.52 ft2
What is the length of this line?

5
Find the midpoint of the line segment joining the points ( 1, - 4 ) and ( - 4, 2 )
(-1.5,-1)
Find the area:

254.34 in2
Find the perimeter

40.26 units

763.02 m2
Find the length of the line that has endpoints of
(-4, -5) and (3,6)
13.04
What is the midpoint of the line segment that is 54 inches long
27
Find the perimeter:

42 units
Find the perimeter
54.56 units
What is the area of the shaded region:

69 yd2