What is name of the bottom of a 2-d or 3-d shape? The bottom is the _____ of the figure.
Base
The bottom surface of a 3-d figure is it's _____. 3-d figures are named from their _____.
Base
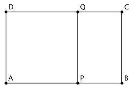
What is the area of the figure below? Line DQ = 5 in, Line QC = 4in, and Line CB = 10 in. Line AB = 9.
90in2
The name for the representation of the unfolded 3-d figure.
Net
What is surface area?
Surface area is the amount of space covering the outside of a three-dimensional shape.
Credit: Khan Academy
The flat surface of a 3-d figure.
Face
A 3-d figure with a square base that comes to a point at its top.
Square Pyramid
What 3-d figure does the net represent?

A triangular prism.
How do you calculate surface area?
What is the process for calculating surface area?
To calculate surface area find the area of each side of the 3-d figure and then find the total area of all of the sides combined.
You can use a net, decomposition, or a formula to calculate surface area.
What makes a 900 angle with the base of a 2-d figure? The _____ is the distance from the top of a figure to it's base.
Height
A 3-d figure made up of 6 rectangular faces. It has a surface at its top.
Rectangular Prism
What is the area of the figure below? Line AE is 12 km long.
Area of the bottom rectangle (48) + Area of top triangle (12).
48+12 = 60km2
What 3-d figure does the net below represent?
Triangular pyramid also called a tetrahedron (means 4-faces)
How much wrapping paper is needed to wrap the gift below?
Credit: https://www.toppr.com/ask/question/find-the-surface-areain-cm2-of-the-square-pyramid-shown-below/
10 x 10 = 100
12 x 10 divided by 2 = 60
100 + 60 + 60 + 60 +60 = 340 cm2
The line where two surfaces or faces meet on a 3-d figure.
Edge
A figure with a triangular base and three rectangular faces. It comes to an edge at it's top.
Triangular Prism

65 in2
Use the net to find the surface area of the solid below.
Square base (36) + Each triangle (27) (include all four)
36 + 27 + 27 + 27 + 27 = 144 ft2
36 + (4 x 27) = 144 ft2
The place where two lines meet on a 2-d figure. The place where two or more edges meet on a 3-d figure.
Vertex
A 3-d figure made up of four triangular faces that comes to a point at its top.
Triangular Pyramid

x = 8m
Which of the two nets represents a 3-d figure with a surface area of 52 units2?
       
Credit image 2: https://www.ixl.com/math/lessons/what-is-surface-area
Surface Area of cube's net is 54 in2. (3x3=9, 9 x 6 equal sides = 54)
Surface Area of rectangular prism's net is 52 in2.
Front/back 4 x 2 = 8, 2 equal sides so 2 x 8 = 16.
Left/Right 2 x 3 = 6, 2 equal sides so 2 x 6 = 12.
Top/Bottom 4 x 3 = 12, 2 equal sides so 2 x 12 = 24.
Surface Area Rectangular prism: 16 + 12 + 24 = 52 in2.
How much paint is needed to paint the statue below?

Credit: https://www.slideshare.net/Kim199/surface-area-of-triangular-prism-1
Front Triangle (49.5) + Back Triangle (49.5) + Left Rectangle (192) + Right Rectangle (192) + Bottom Rectangle (144)
49.5 + 49.5 + 192 + 192 + 144 = 627 m2