Classifying Shapes
Powers of 10
Math Language
Area Model
Teacher's Choice
100
Four 2-D shape names that could also be given to a square.

Quadrilateral, Rectangle, Parallelogram, Rhombus 

100

103

1,000

100

Find the area of a room that measures 15 feet by 10 feet. 

150 square feet or 150 ft2

100

Write the expression that matches this area model representation. 


356 x 48 or 48 x 356 

100

Write a division word problem scenario for: 

Eight separated into two equal groups. 

200

Sometimes, Always, or Never? A rectangle is a rhombus. 

Sometimes, a rectangle is a rhombus only when that rectangle is a square (4 equal sides and 4 90 degree angles)

200

52 x 105

5,200,000

200

Combine, Raise, Join 

Add

200

Solve: 27 x 54 = __________


1000 + 350 + 80 + 28 = 1458

200

Name that shape: 

Octagonal Pyramid

300

Draw any regular polygon. Use symbols on the shape to prove that it is a regular polygon. 

Answers will vary. 

300

Write two expressions that have the same meaning as five times ten to the second power. 

5 x 10 x 10  or   5 x 102  or   5 x 100     

300

Split, Separate, Cut 

Divide 

300

Use the area model below to solve: A+B= ____

2,700 + 210 = 2,910

300

Write a DIVISION EQUATION to match: 


91/7=13 or 91/13=7

400
Three shapes that are always parallelograms. 

Rectangle, Rhombus, Square

400

Solve: 5.43 x 104

Hint: Use whole number estimation to get you in the ballpark. 

54,300

5.43 is between 5 and 6

5 x 104= 50,000 and 6 x 104=60,000

400

Write an equation for four less than ten. 

10-4=6 

400

Find the mistake: 

60 x 30 = 1,800

400

How many groups of 50 are in 1250? 

1250/50= 1000/50 + 250/50= 20+5= 25

500

With two pictures prove that a rectangle is sometimes a square. 

Answers will vary. 
500

Solve: 8 x 103 + 3 x 10+ 2 x 103

10,300

500

What is the volume of a cereal box that measures 6 inches wide, 2 inches deep, and 10 inches tall? 


6 x 2 x 10 = 120 square inches or 120 in.2

500

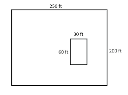
Below is a rough model of Bob's yard and his house. If his house measure 60 feet by 30 feet and the rest is grass. How many square feet of grass does Bob have to mow? 

Total Property 250 ft by 200 ft = 50,000 square feet 

House 60 ft by 30 ft = 1,800 square feet.

50,000-1,800= 48,200 square feet of grass to mow. 

500

Solve: 2X= 64

x = 6 because 2x2x2x2x2x2 = 64