24 mm = ______ cm
2.4cm
2300 mm = ______ cm
230 cm
Length of a pencil.
cm
Which is further: 26.5 km or 236,000 cm?
26.5 km ; 236,000 cm = 2.36 km
A triangle has lengths of 40cm, 55cm and 23 cm. What is the perimeter?
118cm
Which country has the largest population in the world?
China
15 km = ______ m
15000m
2.4km = ______ m
2400m
Distance from Fremantle to Perth.
Kilometres
Which is longer: 181 cm or 1,860 mm?
1,860 mm ; 1,860 mm = 186 cm
The following shape has lengths of 20cm, 33cm, 150mm and 25cm. What is the perimeter in cm?
93cm
What is the official language of Brazil?
Portuguese
35m= ______ km
0.035km
181 km = _______ m
181,000 m
Size of a Football (soccer) field.
metres
John jogs 3.9 km each day. Maria jogs 20,064m each day. Who jogs further?
Maria
A square table has a side length of 1.2m. What is the perimeter of the table?
4.8m
Which country is known as the Land of the Rising Sun?
Japan
0.265 m = ______ cm
26.5 cm
150cm= _______ m
1.5m
Distance between your teeth
mm
Liam bikes 2.6 km to school, then 3,100 m to the store. How far does he bike altogether? Answer in km's.
5.7 km

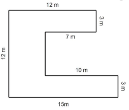
P=24cm
What is the capital city of Canada?
Ottawa
20 mm = _______m
0.020m
234000mm = _______ km
0.234km
Length of your arm.
cm
A worm travels 11.8 cm in the dirt and then another 20.7 cm into the ground. How far has it traveled altogether? Give your answer in mm
325mm

P=68m
What country is both a city and a country?
Singapore